Bilocale in vendita

Pavia, Via Achille Grandi - San Lanfranco
€ 195.000
2 locali 2 locali
75 Mq 75 Mq
1 bagno 1 bagno

Bilocale in vendita

Pavia, Via Achille Grandi - San Lanfranco

Descrizione annuncio

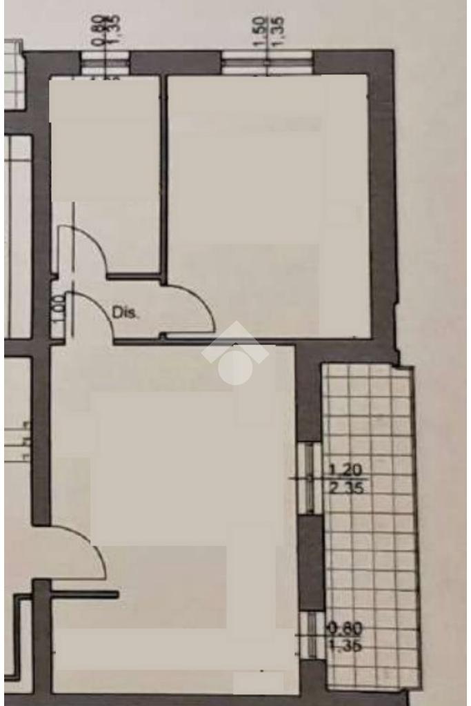
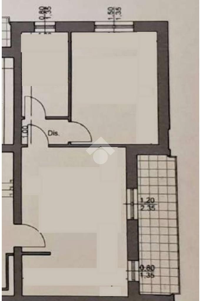
All’interno di un contesto residenziale di recente edificazione, proponiamo in vendita un appartamento bilocale situato al primo piano di una palazzina signorile dotata di ascensore. L’immobile si presenta in ottimo stato manutentivo e offre spazi ben distribuiti, ideali per soddisfare le esigenze di single, giovani coppie o per uso investimento.

Composizione interna:

Ingresso su ampia zona giorno con cucina a vista

Accesso al balcone di generose dimensioni, sufficientemente spazioso per ospitare un tavolo da esterno

Camera da letto matrimoniale di medie dimensioni

Bagno finestrato, completo di box doccia

Pertinenze e dotazioni:

Cantina al piano interrato

Box auto doppio in lunghezza, con comodo spazio per due autovetture o zona di deposito aggiuntiva

Riscaldamento a pavimento, centralizzato con contabilizzatori

Impianto di climatizzazione estiva

Infissi in ottime condizioni

Classe energetica: [Inserire classe energetica se nota]

Spese condominiali:

Le spese condominiali comprendono:

Riscaldamento

Acqua calda e fredda

Manutenzione ordinaria e gestione delle parti comuni

Informazioni aggiuntive:

L’immobile è situato in una zona residenziale ben servita, comoda ai principali collegamenti e ai servizi di prima necessità. Libero al rogito.

Mostra tutto

Nelle vicinanze

Trasporto pubblico Trasporto pubblico
stazione di Pavia
stazione di Pavia
2,3 Km
CHIOZZO Turati
CHIOZZO Turati
80 m
MASCHERPA civ.61
MASCHERPA civ.61
110 m
Ricariche auto elettriche Ricariche auto elettriche
Eneldrive Punto Enel di Pavia
2,6 Km
Scuole Scuole
Vaccari
140 m
Scuola Elementare Canna
1,3 Km
Fondazione Eucentre
1,5 Km
Istituto di Istruzione Superiore Alessandro Volta
1,5 Km
Polo Cravino - Università di Pavia
1,7 Km
Farmacia Farmacia
San Lanfranco
1,3 Km
Ponte di Pietra
2,1 Km
Parafarmacia
2,3 Km
Parafarmacia Dottoressa Claudia Cazzola
2,4 Km
San Patrizio
2,5 Km
Ospedali Ospedali
Centro Riabilitativo Media Assistenza
1,5 Km
Guardia Medica
1,8 Km
Fondazione Casimiro Mondino
2,0 Km
Fondazione Salvatore Maugeri
2,1 Km
Centro Nazionale di Adroterapia Oncologica (CNAO)
2,2 Km
Supermercati Supermercati
U2
1,1 Km
MD
1,9 Km
Carrefour
2,1 Km
Esselunga di Pavia - alla Minerva
2,6 Km
Negozi Negozi
Griffini
2,1 Km
to.market
2,3 Km
Negozi
2,4 Km
OVS
2,5 Km
B.Nice
2,6 Km
Bar Bar
Bar del turista
570 m
Bar Riviera
1,9 Km
Civico Zero
2,4 Km
Minerva Bar & Lounge
2,6 Km
Caffè Carducci
2,6 Km
Ristoranti Ristoranti
La Casa sul Fiume
580 m
Quattro
860 m
Ristoranti
890 m
I Mal Tra Insema
1,3 Km
Fabbrica dei sapori
1,3 Km
Mostra tutto

Caratteristiche

Rif.:
61103421
Piano:
2 di 3 con ascensore (Piano medio)
Box:
1
Balconi:
1
Camere da letto:
1
Arredamento:
Assente
Mostra tutto
Prezzo Prezzo
€ 195.000
Rata mutuo Rata mutuo
€ 901 / mese
Spese annue Spese annue
€ 1.650
Proponi il tuo prezzoProponi il tuo prezzo

Classe Energetica

B
B
B
B
B
B
B
B
B
EP globale non rinnovabile:
48.15 kW h/m² anno
EP invernale del fabbricato:
EP estiva del fabbricato:
Anno di costruzione:
2011
Riscaldamento:
Centralizzato
Tipo impianto:
A radiatori
Tipo alimentazione:
Metano

Ti interessa visionare l'immobile?

Fissa un appuntamento  Fissa un appuntamento

Richiedi informazioni

* Questi campi sono obbligatori

Calcola il tuo mutuo

Semplice e senza impegno
Anticipo

( % )
Mutuo

( % )

pochi semplici passi

inserisci i tuoi dati
Questionario completato
Grazie per aver richiesto un appuntamento senza impegno con un nostro Consulente del Credito e Assicurativo.

Hai inserito correttamente tutti i dati necessari e a breve riceverai una e-mail con un link da convalidare per inviare i tuoi dati.
Affiliato
Studio Rmd 23 Sas
Viale Della Libertà, 47/8 27100 Pavia (PV)

Il nostro staff


  • Marco Bernabovi
    Affiliato

  • Stefano Invernizzi
    Responsabile

  • Simona Pinna
    Collaboratrice

  • Francesco Tumbarello
    Collaboratore
Viale Della Libertà, 47/8 27100 Pavia (PV)
Zona: Chiozzo-Cravino-Sora-Stazione-Ticinello-San Lanfranco-Ticinello-Policlinico
Mostra su mappa
Orari: dal lunedì al venerdì dalle 9.00 alle 12.30 -dalle 14.30 alle 19:30; sabato dalle 9.00 alle 12.30 - ; domenica su apputamento
Affiliato
Studio Rmd 23 Sas
Viale Della Libertà, 47/8 27100 Pavia (PV)

2025 Tecnocasa Franchising S.p.A. - P. IVA 08365160152 - Via Monte Bianco 60/A 20089 Rozzano (MI). Ogni agenzia ha un proprio titolare ed è autonoma. Privacy policy | Policy utilizzo | Cookie policy